Politics
อึ้ง! ‘ศุภณัฐ’ เปิดแปลน ห้องปาร์ตี้ 100ล้าน ‘ตึกสตง.’ ถล่ม

“ศุภณัฐ” เปิดแปลนออกแบบ “ตึกสตง.” ถล่มจาก “แผ่นดินไหว” อึ้ง ห้องสันทนาการ 3,000 ตร.ม. ห้องเดียวใช้ภาษีกว่า 100 ล้าน ห้องน้ำ 45 ห้อง มีบันไดโค้ง เหมือนโถงโรงแรม
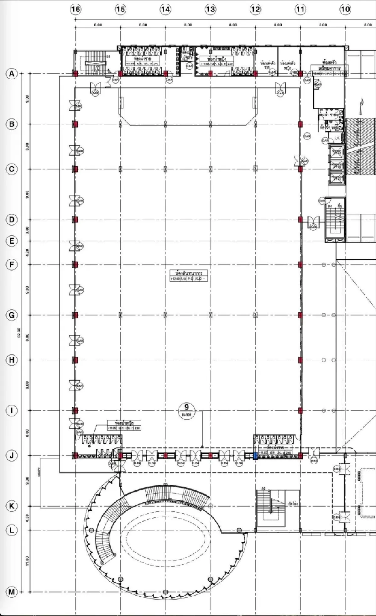
นายศุภณัฐ มีนชัยนันท์ สส.กทม. พรรคประชาชน โพสต์ผ่านเฟซบุ๊คส่วนตัว เปิดเผยถึงแปลนการออกแบบตึกสำนักงานตรวจเงินแผ่นดิน (สตง.) ที่ถล่มจากเหตุแผ่นดินไหว ว่า ห้องสันทนาการ ตึกสตง. ขนาด 3,000 ตร.ม. ห้องเดียว ใช้เงินภาษีกว่า 100ล้านบาท
มีเวทีขนาด 150ตร.ม. พร้อมห้องแต่งตัวชาย/หญิง ห้องครัวเตรียมอาหาร ห้องน้ำ 45 ห้อง ลิฟท์ 3 ตัว บันได 4 มุม คาดว่าไว้จัดปาร์ตี้โต๊ะจีน งานเกษียณ ฉลองปีใหม่ ไม่ต้องเสียเงินไปปิดร้าน ใช้ที่หลวง ไฟหลวง เงินหลวงฉ่ำๆ
กลมๆด้านหน้า คือโถงพร้อมบันไดโค้ง- ฟีลประมาณ โถงโรงแรม ที่มีบันไดวนสวยๆ ไว้ให้บ่าวสาวถ่ายรูปจูงมือเดินลงบันไดนะครับ







